Summit Community Financial
The principle inspiration for this bank design project is CABIN. Set in the picturesque mountain town of Hood River, Oregon, Summit Community Financial draws inspiration from the warm, natural environment of a traditional log cabin, likely common in those mountainous parts.
​
Natural materials – mainly wood – dominate the design, balanced by neutral colors that complement their warmth. Furniture arrangements assist the comfort and social habits of the users, including the necessary amenities for clients and staff. Overall, this spacious and inviting interior allows business to be conducted in a space that borrows the best aspects of a cabin in the woods.

SUMMIT
COMMUNITY FINANCIAL

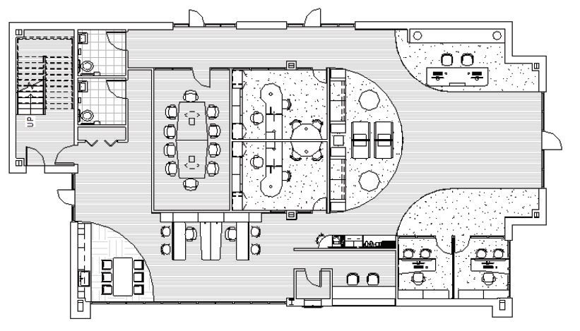
The floor plan employs a supremely open concept, with the central offices and lounge splitting the public spaces from the private employee areas. However, the employee area is not walled off, displaying transparency and trustworthiness, vital characteristics for a bank. The rooms and areas include two administrative offices, two open employee workstations, two private business offices, a break area, coffee center, reception desk, lounge, conference room, and two unisex restrooms.

Upon entering the bank, the user is greeted by a lofty, open concept lobby that emulates the vaulted ceiling of a cabin. Dark wood accents draw the eyes upward, and the antler-inspired pendant lights in the lobby are reminiscent of a rustic woodsy lifestyle. The scene is completed by a back-lit bank logo, connecting Summit Community Financial to the openness, warmth, and transparency that this space provides.

Natural light floods the employee workspace and break area, connecting the staff to the outdoors and improving their physical and mental well-being. Acoustic blades hang over this private portion of the bank, serving a double purpose: (1) to form a sound barrier between the lobby and workspace, and (2) to emulate the prominent wood beams seen in traditional cabins.

The floor plan employs a supremely open concept, with the central offices and lounge splitting the public spaces from the private employee areas. However, the employee area is not walled off, displaying transparency and trustworthiness, vital characteristics for a bank. The rooms and areas include two administrative offices, two open employee workstations, two private business offices, a break area, coffee center, reception desk, lounge, conference room, and two unisex restrooms.